面向在京台胞公共租赁住房专项配租工作正式启动
为贯彻北京市“关于深化京台经济文化交流合作的若干措施”,缓解在京就业、创业台湾同胞的住房困难,7月29日,北京市正式启动面向在京台胞公共租赁住房专项配租工作。
首批筹集40套房源,分别涉及位于昌平区的冠芳园、保利芳园、悦府家园、溪城家园4个公共租赁住房项目,房源周边配套设施齐备,交通便利。
此次专项配租意向登记工作采取网络自行登记的方式进行。登记系统将于8月7日至8月13日开放,面向台胞进行登记。8月8日至8月19日(周六日除外),在北京市政务服务中心(北京市丰台区西三环南路1号)三层A岛125窗口,受理完成网上登记的申请人提交资格审核材料。后续将通过公开摇号的方式随机确定申请人的选房顺序,按照摇号顺序,申请人将依次办理选房、签约及入住手续。
据悉,除此次专项配租外,市有关部门将继续按照以区为主、职住平衡、产业融合、精准分配的原则,结合公租房和集体土地租赁住房建设进展,指导各区将符合条件的在京创业、就业台湾同胞纳入公租房保障范围。
关于面向在京创业、就业的台湾同胞专项配租公共租赁住房的公告
根据国台发〔2018〕1号《关于促进两岸经济文化交流合作的若干措施》和京台发〔2018〕2号《关于深化京台经济文化交流合作的若干措施》(以下简称“55条措施”)精神,为缓解在京台湾同胞居住困难,现就面向符合一定条件的在京创业、就业台湾同胞专项配租公共租赁住房有关事宜公告如下:
一、房源情况
此次配租房源涉及4个公共租赁住房项目,房源共计40套。其中,大套型10套,中套型27套,小套型3套。项目详细情况见下表:

二、配租对象
(一)申请条件
具有完全民事行为能力,至2019年7月1日年满18周岁且年龄不超过45周岁(含)的台湾同胞(以下简称“申请人”),申请人持有本市合法有效台湾居民居住证,申请人及家庭成员(配偶和未成年子女)在本市均无住房,并符合下列条件之一:
1.在京合法稳定就业满12个月;
2.在京创办企业(含个体工商户);
3.高校应届毕业生,并已与在京用人单位签订12个月以上的劳动合同或聘用合同。
(二)注意事项
1.申请人本人及家庭成员已经签约配租、配售其他保障房的家庭,不得参加此类配租;
2.申请人工作单位或创办企业需位于本市且在本市注册,所处行业符合北京市产业发展需要,未列入产业禁止和限制目录;
3.本次成功配租后,申请人将与北京市保障性住房建设投资中心签订《北京市公共租赁住房租赁合同》,合同期为3年。相关主管部门会每年对申请人的承租条件进行复核,对不再符合配租条件的,将书面通知办理退租手续,相关使用、退出和管理工作按照租赁合同和北京市现行公共租赁住房的相关办法执行。
三、配租流程
(一)意向登记
1.登记时间:2019年8月7日10:00--2019年8月13日17:00
2.登记方式
本次意向登记工作采取网络自行登记的方式进行,申请人自行登录“55条措施”网页。点击“台胞公租房登记”进入登记系统界面,并按照相应提示进行操作。
网址:http://www.bjstb.gov.cn/taiban/55/index.html
申请人在完成网络登记后,需于2019年8月8日——2019年8月19日(上午9:00——11:30,下午2:00——4:30,周六日除外)期间前往北京市政务服务中心(北京市丰台区西三环南路1号)三层A岛125窗口(窗口电话:89150832),提交相关材料(详见附件1),逾期未提交相关材料的申请人视为放弃参加本次登记。
(二)资格审核
相关部门对申请人资格进行审核,并在“55条措施”网页和京彩台湾微信公众号、北京台资企业协会微信公众号公示资格合格人员名单。
(三)摇号排序
在公证部门现场监督下,对通过资格审核的申请人进行公开摇号(具体时间详见资格审核结果公示),随机确定申请人选房顺序,并在“55条措施”网页和京彩台湾微信公众号、北京台资企业协会微信公众号公示摇号结果。
(四)选房签约
按照摇号顺序,依次通知符合条件的申请人办理选房、签约及入住手续,选房前将会安排实地看房,请申请人保持通讯有效、准确、畅通。选房入住工作结束后,本次配租过程中取得的摇号顺序号自动失效。
四、其他
咨询电话:55564223
技术支持:57981706、57981738(意向登记系统开放登记期间)
咨询时间:上午9:00-12:00,下午2:00-5:00,法定节假日除外。
特此公告。
附件:1. 线下审核需提供的材料清单
2.《项目户型图》
3.《意向登记系统操作手册》
北京市台胞权益保障服务中心
北京市保障性住房建设投资中心
2019年7月29日
附件1
线下审核需提供的材料清单
1.申请人本人及家庭成员(配偶和未成年子女)身份证件原件和复印件(台胞证、台湾居民居住证,如配偶或未成年子女为大陆居民的应提供居民身份证)、户籍文件的原件或复印件。
2.婚姻状况资料(三选一):
①单身声明;
②结婚证原件和复印件1份;
③离婚证或法院判决书原件和复印件1份。
3.其他相关资料(三选一):
①符合在京合法稳定就业条件的:需提供与在京用人单位签订的12个月以上(含12个月)的聘用合同或劳动合同(合同需尚在履行期限内)原件和复印件1份;
②符合在京创业条件的:需提供有效期内的营业执照(副本)原件和加盖公章的复印件1份;
③符合高校应届毕业生条件的:需提供毕业证原件和复印件1份及与在京用人单位签订的合同期12个月以上(含12个月)的聘用合同或劳动合同原件和复印件1份。
附件2-1
冠芳园公租房项目户型图

H户型
户型编号:H户型
居室类型:二居室
建筑面积:约61.59-62.23平米
房屋朝向:东
房屋租金:约2340.42元/月-2364.74元/月

H反户型
户型编号:H反户型
居室类型:二居室
建筑面积:约61.81-62.23平米
房屋朝向:东
房屋租金:约2348.78元/月-2364.74元/月

H’户型
户型编号:H’户型
居室类型:二居室
建筑面积:约60.10平米
房屋朝向:东
房屋租金:约2283.80元/月

H’反户型
户型编号:H’反户型
居室类型:二居室
建筑面积:约60.73平米
房屋朝向:东
房屋租金:约2307.74元/月
附件2-2
保利芳园公租房项目户型图

户型编号:A
居室类型:零居
建筑面积:约38.6-38.86平米
房屋朝向:西
房屋租金:约1273.8元/月-1282.38元/月
附件2-3
悦府家园公租房项目户型图

C户型
户型编号:C户型
居室类型:二居室
建筑面积:约51.32㎡—51.45平米
房屋朝向:东北/西北
房屋租金:约2206.76元/月—2212.35元/月

F户型
户型编号:F
居室类型:二居室
建筑面积:约55.54㎡—55.74㎡
房屋朝向:东南/西南
房屋租金:约2388.22元/月—2396.82元/月

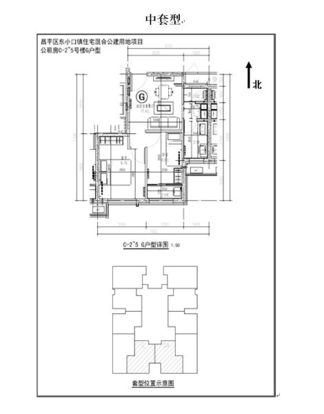
G户型
户型编号:G户型
居室类型:二居室
建筑面积:约54.29㎡—54.46㎡
房屋朝向:南
房屋租金:约2334.47元/月—2341.78元/月
附件2-4
溪城家园公租房项目户型图

户型编号:A4
居室类型:厅室合一
建筑面积:约33.3㎡
房屋朝向:东
房屋租金:约1431.9元/月